A pre-application for development at 121 East Putnam Ave, the site of the former Chocoylatte building, has been submitted to Greenwich Planning & Zoning Dept for review by the commission.
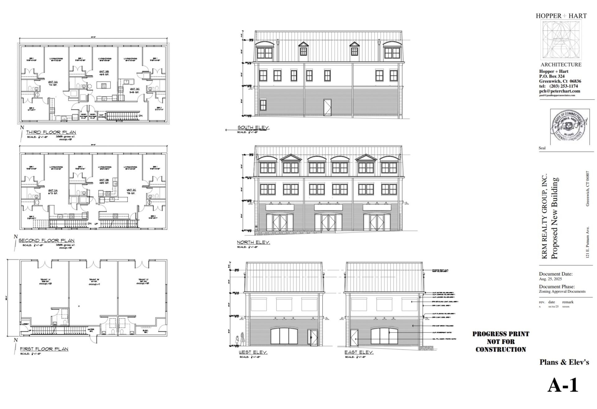
The applicant is KRM Realty LLC. The proposal is for a three-story mixed-used building with commercial/retail on the ground floor and six residential units on the second and third floors, per Section 6-110 of the town’s building zone regulations, intended to incentivize moderate income housing.

Empty lot at 121 East Putnam Ave in Cos Cob, previously home to Chocoylatte. Sept 9, 2025 Photo: Leslie Yager

Empty lot at 121 East Putnam Ave in Cos Cob. Sept 9, 2025 Photo: Leslie Yager
The Chocoylatte building was irreparably damaged on February 6, 2020 when a Ford Taurus crashed into it, killing the driver. The building was examined and declared unsafe by Town of Greenwich Building Inspectors.
Ultimately the building was demolished.
Subscribe to the daily Greenwich Free Press newsletter.
The building had been fixed up since it previously housed Commuter Cleaners, and had only just opened in July 2019.
At one point the building had been used as a gas station, which required environmental remediation, but many remember that it was previously home to Commuter Cleaners.
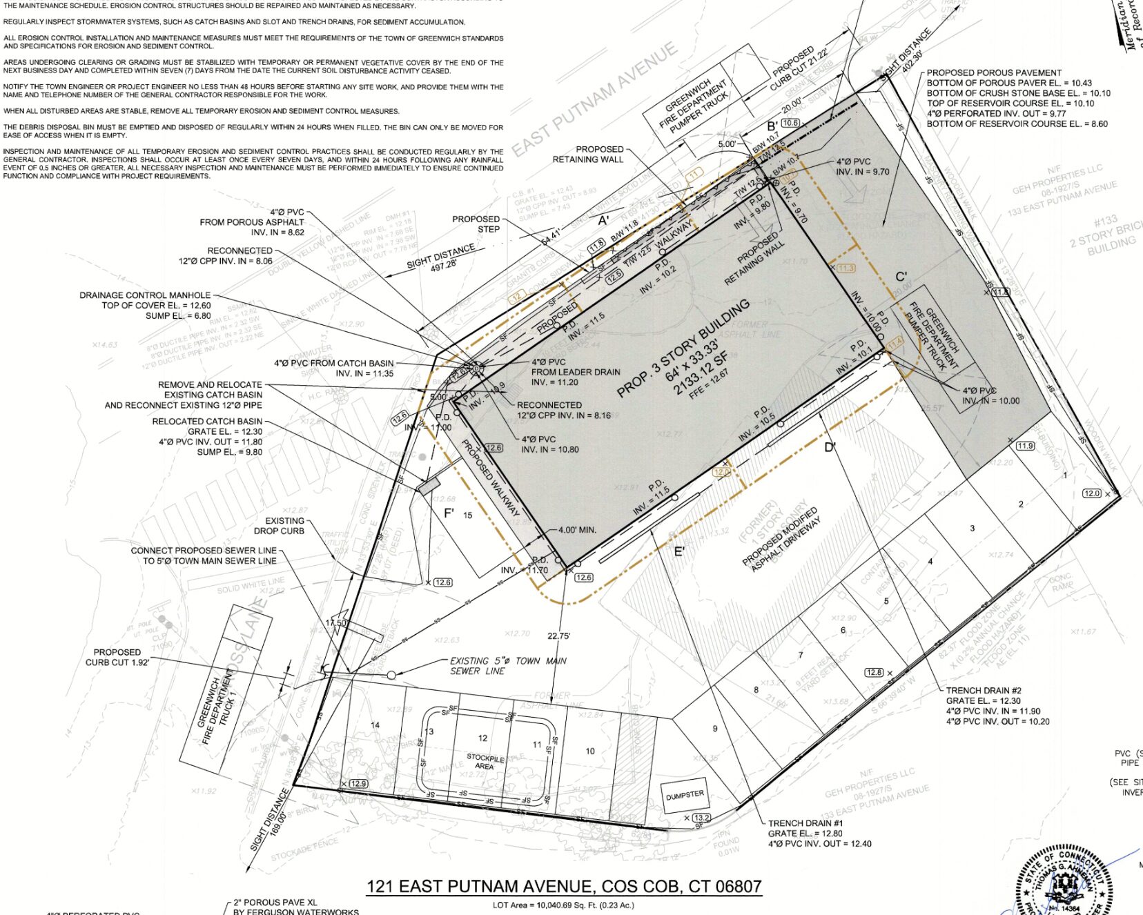
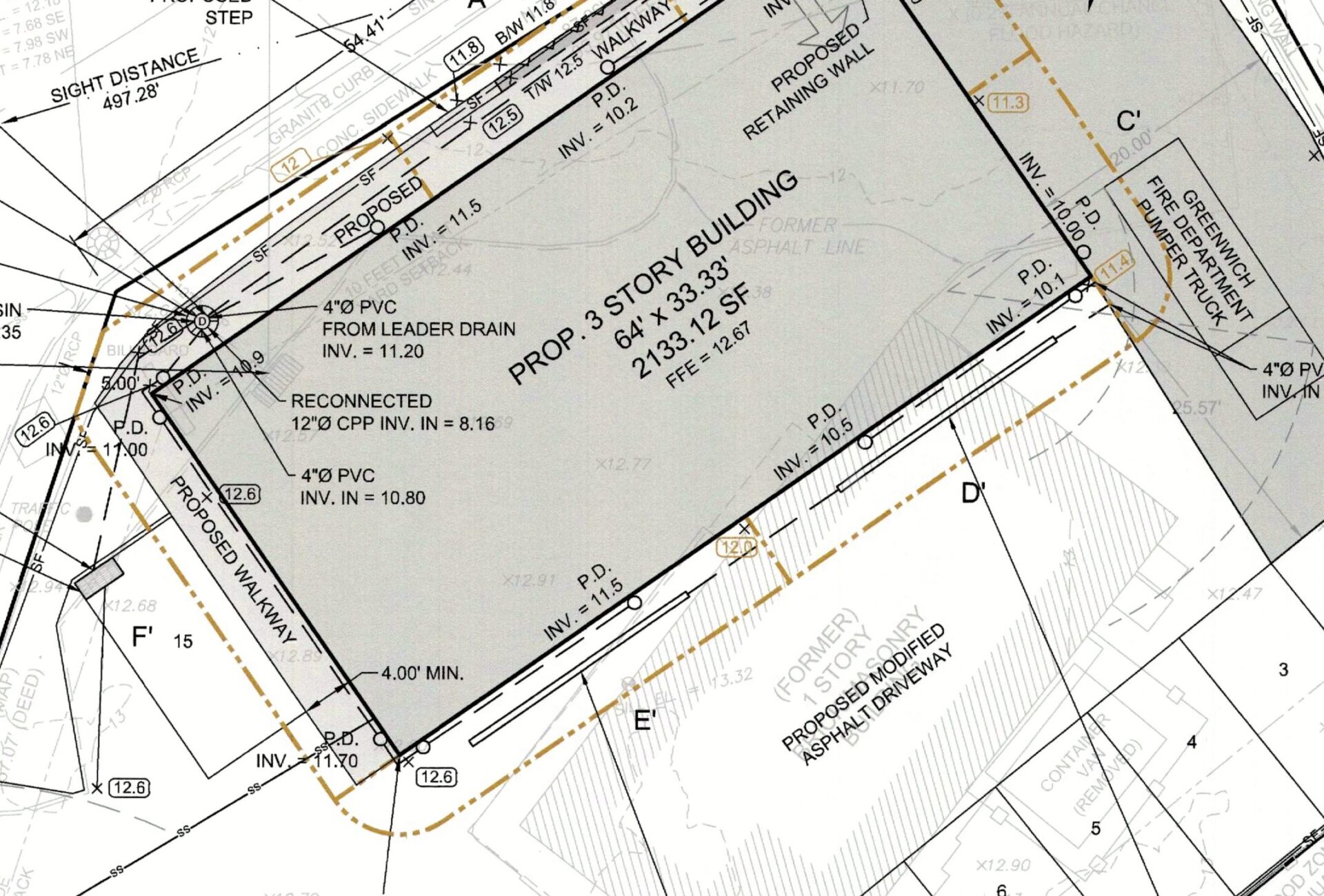
The proposed building would be 37 ft high and 5896 sq ft.
The six housing units would break down as follows:
• 4 two-bedroom units
• 2 one-bedroom units
One of the units would be deed restricted as Moderate-Income Dwelling (“workforce”) pursuant to 6-110, and the applicant in turn seeks incentives regarding stories, height, lot coverage and FAR.
The applicant proposes 14 regular parking spaces, plus 1 handicap space.

The application features 14 parking spaces and one handicap space, as well as a curb cut on East Putnam Ave.

Enlarged: The three story building is proposed to be in the area in front of the former 1 story building at 121 East Putnam Ave in Cos Cob.

Application to Planning & Zoning for a three-story building with 6 units and commercial on the ground floor at 121 East Putnam Ave in Cos Cob.
The application narrative says parking should be more than adequate depending on the ground floor uses and that “by applying the averaging in Section 6-129 of the Regulations, the historic streetscape setback would be maintained.”

100 East Putnam Ave, a mixed use development that was approved under 6-110, Greenwich’s workforce housing regulation. Sept 9, 2025 Photo: Leslie Yager

100 East Putnam Ave was home to Friendly’s restaurant but was home to M&T Bank in 2019. Photo: Leslie Yager
Across the street at 100 East Putnam Ave, a 22-unit, mixed-use housing development also was approved under 6-110 reg for moderate “workforce” housing. This is the site of the former Friendly’s restaurant and more recently was home to M&T Bank.
P&Z approved a change of use from bank to medical spa in October 2024, giving the green light for Pause Studio which recently opened on the ground floor with 7 therapy rooms, cryotherapy, light therapy, Sauna, Float room, compression therapy, and three IV stations.
The attorney on the 100 East Putnam Ave application was Chip Haslun, who is also representing KRM Realty on the new proposal at 121 East Putnam Ave.
The pre-application at 121 East Putnam Ave from KRM LLC has yet to be scheduled for a P&Z commission meeting.
See also:
In Greenwich, “Hands-On” Businesses Put the Squeeze on Traditional Retail
July 28, 2024
P&Z Watch: Pause Medical Spa Okayed in Mixed Use Building at Former Friendly’s Site
Oct 31, 2024
March 13, 2020
Dreaming of Chocoylatte in Cos Cob as Lawsuits Drag On
July 5, 2024
Crash Destroys New Bakery in Cos Cob
Feb 7, 2020
New Chocolate Hub, Chocoylatte, Opens in Cos Cob

Happier times – Kelly Dantas, owner of Chocoylatte in Cos Cob with then First Selectman Peter Tesei and State Rep Fred Camillo at the ribbon cutting for the chocolate themed shop. July 25, 2019 Photo: Benjamin Rosenfeld

Contributed photo of crash into Chocoylatte building. Feb 6, 2020

Contributed photo of crash into Chocoylatte building. Feb 6, 2020