At the Sept 3 Planning & Zoning meeting, the commission discussed a pre-application to redevelop 22 Oxer Place in Byram.
The applicant wants to demolish the existing garage and house that dates back to 1914, and build a two-family house, with each unit having two bedrooms, on the .124 acre property.
The lot is at the end of a dead end in the R6 zone.

At the end of dead-end of Oxer Place is #22 where a sidewalk and railings rise up a slope to Henry Street. Sept 4, 2025 Photo: Leslie Yager
Attorney Enrico Costantini of FLB Law in Westport and Curt Lowenstein PE of Landtech represented the property owner, identified as Michael Mixer, though during public comment, Timothy Judge claimed he owned the property.
“I am the owner of the property ,” Mr. Judge said. “I have a claim of equitable lien filed in January and uncontested from this year. I was illegally ejected in 2022.”
Mr. Judge said he was waiting for a trial for his ejectment.
“I still claim and have proved that I own that property. It has gone undisputed and there has been no answer to the eviction I suffered in November of 2022. I lived there with my family from 2003 until the illegal ejectment, and I had appeals going for the foreclosure, and three times they tried to eject my family, and then they did it with police assistance.”
Ms Alban said that dispute was not in the purview of Planning & Zoning.
“All that we look for is the person who filed the application was legally entitled to represent the property,” she said.
According to the Assessor’s office, 22 Oxer Place sold from US Bank National Association to Michael Mixer of Weston, CT, on Dec 28, 2020 for $635,274.
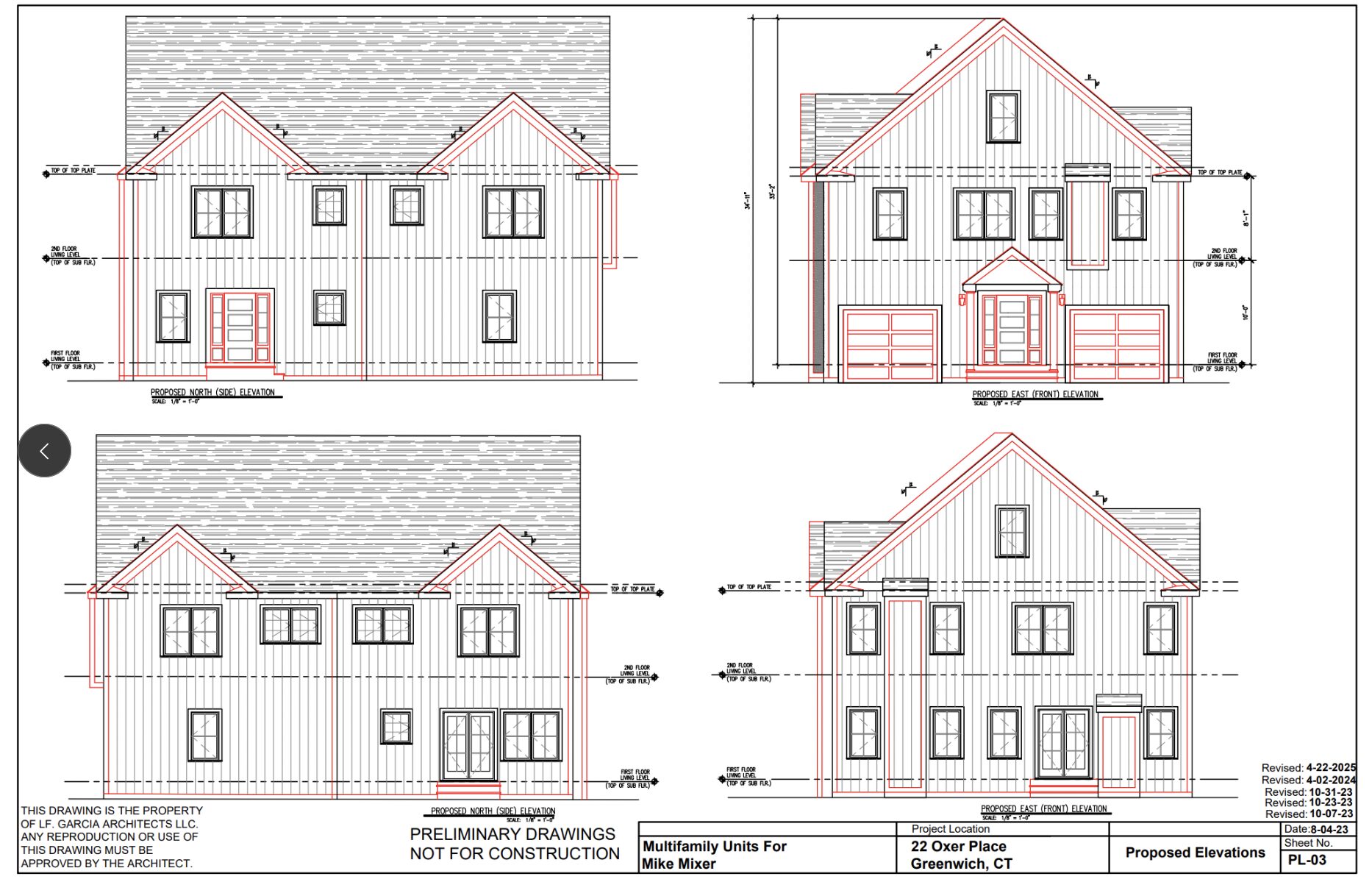
During the applicant’s presentation, Mr. Lowenstein said the project would bring the “severely undersized lot” closer toward conformity.
The proposal includes four parking spaces with ingress and egress via Oxer Place. Currently there is a curb cut off Henry Street for a driveway and a non-conforming garage that would be removed.
There is a retaining wall along the driveway and a steep drop down to the first floor of the house.

Single car garage and driveway via Henry Street for 22 Oxer Place. Sept 4, 2025 Photo: Leslie Yager
Each proposed unit would have a garage space underneath and the remainder of spaces outside, including tandem spots.
Mr. Lowenstein shared diagrams illustrating turning movements for vehicles in each of the parking spaces.
One space would require a “multi-point turn.”

Mr. Lowenstein said ingress and egress off Oxer Place would be safer than via busy Henry Street, but the P&Z commissioners balked at the turning movements.
Commissioner Nick Macri noted that since the driveway and garage are at a higher grade, it might be possible to move the proposed house further back from Oxer Place.
Mr. Macri referred to the “calisthenics” necessary to park cars as proposed and noted the street relies on a critical catch basin outside 22 Oxer that should not be compromised.
“Your curb cut is sitting right on top of the catch basin,” Macri said.
“It would still remain functional,” Lowenstein said.

Catch basin outside 22 Oxer Place. Sept 4, 2025 Photo: Leslie Yager
The applicant described Oxer Place as a “de facto cul de sac,” but several neighbors wrote a letter opposing the proposal, noting it is a dead end with on street parking on both sides. They said on street parking is maxed out and delivery trucks have to back all the way up Oxer to leave because it’s impossible to turn around.
Although the applicant would require variances for setbacks, they said the removal of the non-compliant garage via Henry Street would bring that part of the property into compliance for setbacks.
“I have concerns on the safety aspect of it. You have the house across the street. You have deliveries going on. I don’t think that backing out onto a street is the safest way to go, particularly if you’re going to have screening in there, which you will,” Macri said.
“Being that this is a dead end, I think this is a much safer condition than would be if the site was left as remains and folks were trying to back their way out onto Henry Street,” Lowenstein said. “Henry Street is a much busier road with two way traffic.”
“We’re expressing to you discomfort with what would happen potentially with new development where we are supposed to reduce the non-conformity or non-workability of the site,” Alban said.
Mr. Welles asked if the house was currently a single family or two family house, adding that it is listed as only 1100 sq ft.
“The field card has it listed as a duplex,” Mr. Costantini said.
“They’d be in pretty tight quarters – 550 sq ft, both,” Welles said.
Mr. Lowenstein disagreed that backing out onto Oxer Place was a safety issue.
“I don’t agree with that characterization. It’s a dead end road. There’s not two ways of traffic coming at you. Cars can easily back out onto this road in a safe manner.”
Mr. Welles asked the applicant if they had considered other options, including building a single family house, and to “knock out all the non-conformities except the undersized lot.”
“You’re going to have to go to the ZBA for variances,” Ms Alban said. “Is this the best proposal that you can put forward?”
Mr. Lowenstein said they had yet to file an application to ZBA and wanted to hear the feedback of P&Z first.
Commissioner Mary Jenkins noted the public sidewalk/path at the end of Oxer Place was within the town right of way and goes in front of the 22 Oxer property.
“Is there a visibility issue with the remaining sidewalk that then takes a jag to the right? Would someone on the sidewalk be able to see someone backing out in their direction?” she asked.
“I would think so,” Lowenstein said. “We’d be maintaining that sidewalk . We’re not planning to remove it.”
Jenkins also asked if the mature tree in the side yard would remain.
The response was that it would be removed.

Mature tree (at left) proposed to be removed at 22 Oxer Place for a new two-family house. Sept 4, 2025 Photo: Leslie Yager
Several neighbors testified via Zoom, including Andrea Miloro of 21 Oxer Place and Arianne Apicelli of 12 Oxer Place.
Ms Miloro, who lives directly across from 22 Oxer, said Mr. Lowenstein’s diagram of tandem parking on one side of the proposed two-family house meant cars would need to pull directly into her driveway in order to turn.
She also expressed concerns about intrusion on the drain, given so many neighbors experience water in their basements.
“This notion that we are a dead end street, and so it is easy to come and go from that dead end street, is ludicrous,” she added. “Out of 9 homes there are 4 that are multi-family homes, mine being one of them,” Miloro said.

22 Oxer Place. Sept 4, 2025 Photo: Leslie Yager

Paved slope and railings connecting the Oxer Place dead end at 22 Oxer to Henry Street. Sept 4, 2025 Photo: Leslie Yager

Paved slope and railings connecting the Oxer Place dead end at 22 Oxer to Henry Street. Sept 4, 2025 Photo: Leslie Yager
“It’s nearly impossible for me to get out of my driveway safely, especially when I back out. If there is no room at the end of that dead end, I’m forced most likely to pull into my neighbor’s driveway to then head out of the driveway or back all the way up the road.”
She noted the sidewalk/path that comes down the hill from Henry Street is used by children who go to western and children who get off or on bus stops and by dog walkers.
Ms Miloro noted the Judge family who lived at 22 Oxer had used it as a single family.
Ms Alban noted the lot was zoned for two-family.
Scott Sargeant from 11 Oxer Place also expressed concern about the drain being compromised.

Cars parked on both sides of Oxer Place. Sept 4, 2025 Photo: Leslie Yager
“The biggest thing not mentioned, is the parking of cars on this road already,” he said. “The way the drawings have the cars trying to get out of the driveway is ridiculous – you’ll never get out of there because there are cars parked on both sides of the street – both sides, all the way down. It’s going to create absolute havoc out here with more cars. And more cars that will park on the street from that house,” he said.
Arianne Apicelli suggested the commission schedule a site visit.
“This street is 28 ft wide, so if anyone is pulling in and out, it is not a visible way to do it. If you’re backing out, the way you propose doing this. It’s a narrow dead end that slopes down.”
Further Apicelli said, “Where you’re putting the curb cuts in would take away our catch basin on that one side. We all have sump pumps in. A lot of us have put French drains in because of flooding.”
Ms Apicelli emphasized the road was not a cul-de-sac, but a dead end. “You cannot turn around at our dead end. When FedEx comes down here, they literally back out and you can hear the beeping for miles.”
Ms Alban summed up the issues, including parking in the front yard, lack of screening capability in the front yard, lack of maneuverability of the parking spaces, limited on-street parking, and the need for variances.
“You’re not hearing an enthusiastic endorsement,” Alban said. “We do try to move some of these two-families forward if we can. This is a lot of crowding on a lot that is very under-sized.”



22 Oxer Place is inside blue lines, with driveway and garage at left, and curb cut off Henry Street. At right of blue line a walking pathway off Henry Street gives pedestrians access to Oxer Place, often used by WMS students.
