By Scott Simonsen, Owner, Old World Craftsmen, Greenwich
Well-developed blueprints are essential for clearly communicating your vision—not just to you as the client, but also to the builder who brings that vision to life. They serve as the bridge between how you want to experience and live in the space and the practical execution of the construction phase. All too often, however, I receive “Candyland” blueprints—flashy, stylized drawings, sometimes with 3D renderings that may look impressive but fall short in conveying the detailed, buildable information a contractor needs.
Client Provided Resources

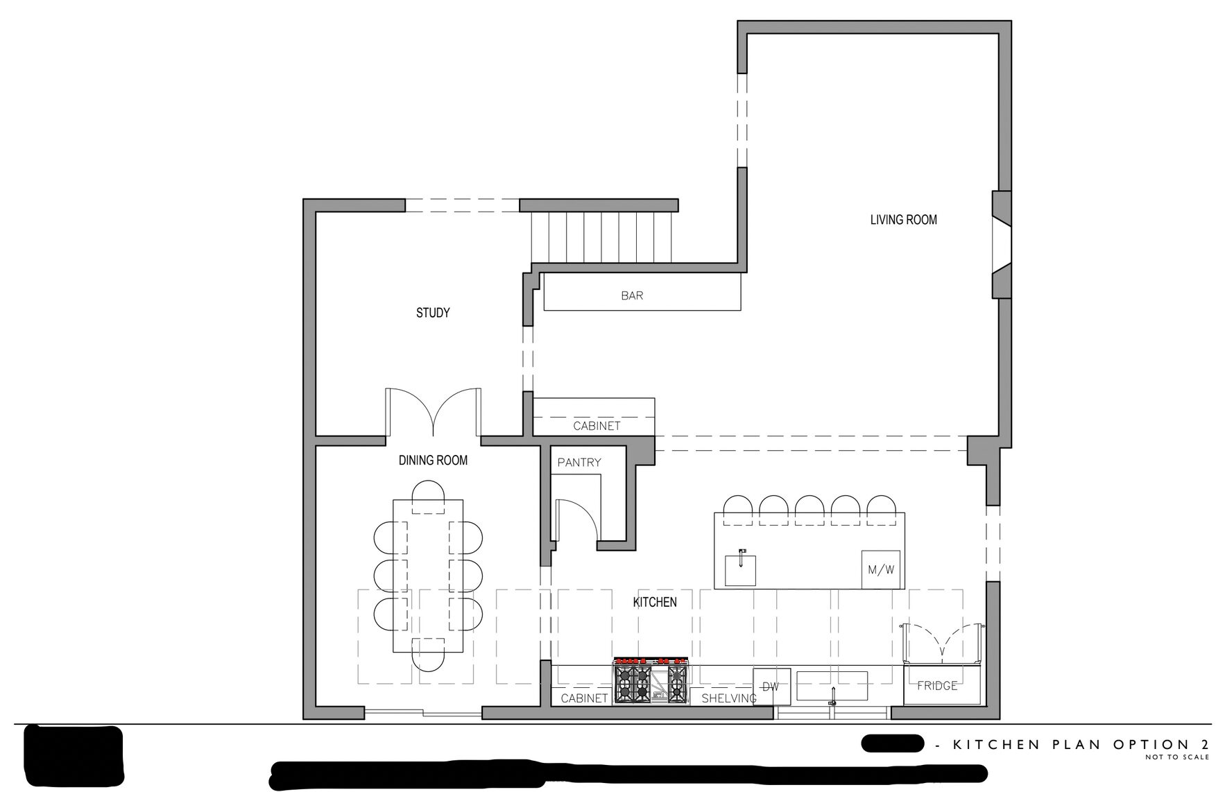
“Candyland” Blueprints
So often when I receive a drawing from a client looking for pricing on a construction project they are what I call “Candyland” Blueprints! Sometimes they have lovely 3-D
views with digitally created paintings on the walls, pendant lighting on the ceiling and flowers on the kitchen counters. They are sometimes good for communicating the overall aesthetic of a design to a client.

Outsourced (online) designs
With the growth of online outsourced design platforms, we’re seeing more and more of these pretty, dimension-free images come our way as the “design drawing.”
While these images have their place for client communication, they are not useful for the builder and normally will not procure a building permit.
They frequently have missed code compliance and practical design constraints. If you want a successful permit application and build process, you’ll need a real architect or designer, knowledgeable of local building codes to develop proper construction documents.
Sometimes a set of “blueprints” is so terrible that it is useless for both client and builder, not to mention the building department.
Take a look at a real drawing we were sent by a client in Rye Brook:

Here’s an excerpt from my email to the client in Rye Brook:
“This plan wouldn’t be close to enough to provide pricing or to file for a building permit. Are there other pages/views: Electrical plan, existing conditions, elevations, structural? I notice there are no dimensions, and it says it’s not to scale.”
I really wanted to say, “I hope you didn’t pay for this.” And unfortunately, no, there were no other pages.
What are Blueprints for?
Blueprints are more than documents, they are your vision for the builder.
Thoroughly developed blueprints are part of how the work to be done is communicated to you as the customer, as well as to the builder. They are the bridge between your vision and how you wish to see and use the space, and the builder who should be making it a reality.
We take a detailed look at how blueprints are used in my article: “Why do I need to update my Blueprints?”
What do proper blueprints or construction documents include?
Here is a general, although not exhaustive, list of what should be contained in a set of design drawings:
• Existing Conditions Drawing: The building department and builder will need to see what is there now compared to the new blueprints to see the alterations.
• Dimensioned, Scaled Floor Plan: This should be the new design presented to scale in legible size with key dimensions.
• Structural Information: If you are removing a wall, a qualified professional (engineer, architect or veteran builder) has to verify if it is structural, and if so, what means of support will need to be provided to replace the wall. Don’t forget that this applies to exterior walls too, so when changing or relocating a window, this is generally structural. Header, beam, and column sizes and specs should be on the blueprints.
• Elevation Views: On a large renovation, in addition to the top or plan view, side or elevation views of the walls (interior or exterior) are incredibly helpful for builder and client alike. Where the exterior of the home is affected, elevations will generally be required by the building department.
• Electrical/Lighting Plan: The lighting and electrical locations and fixture types are critical for accurate pricing and layout.
• Lighting Legend: Usually part of the electrical plan, this will call out the specs of the recessed lights, vent fans, sconces and under cabinet light fixtures or where lights are customer supplied.
• Window Schedule: The manufacturer, model number and specifications of each window should appear on the blueprints. There are many building codes that relate to windows: Where they should be tempered, required U factors (the figure for the heat transmission of a window), Low E coatings.
• Door Schedule: The manufacturer, model number and specifications of all interior and exterior doors should be provided. Each door dimension and swing should be noted.
• Finishes: For accurate pricing, the design drawings should specify finishes – especially floor finish: Tile, wood, laminate, plywood for carpet, etc. Pricing between those items varies.
• Appliances: Refrigerator, range, microwave, beverage fridge, disposals, ovens, range hoods, etc. should be detailed so the plumber and electrician make the required mechanical provisions.
• Heating: Radiators or HVAC ducts should appear on the plans, at least where they are affected by the renovation. Specs for how the new space will be heated should be noted.
• Insulation Specifications: To receive a building permit, the municipality will generally require that the R value and type of insulation to be used in the renovation be specified and comply to energy codes.
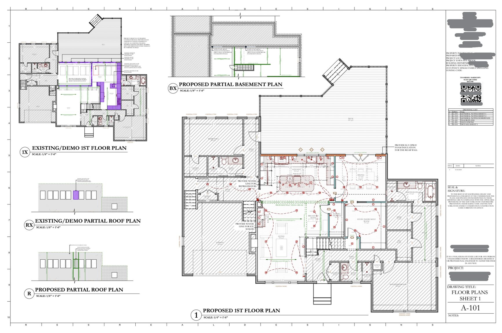
Here is a real set of blueprints our team drew up for our Rye Brook client with what I refer to as “Candyland blueprints” shown above.

What can I do with these blueprints?
These blueprints take the client through architectural design, and can be used to procure a building permit and to obtain preliminary pricing.
Why do I say preliminary? Well…for information on how an interior designer takes it from there, with product specification, interior elevations, cabinetry design, etc., check out my article: “What does an Interior Designer Do?”
Conclusion
While many people may try to cut corners when it comes to blueprints (either unintentionally or intentionally), the benefits of detailed and thorough blueprints & specs pays off in the build phase in both time and money. During construction there are many players, and sometimes many voices and opinions. With purposeful blueprints in place before the project begins, projects are able to remain on track and stay true to the vision, timeline, and budget of the build.
Scott Simonsen is a graduate of Cooper Union’s select Electrical Engineering program. He spent three years in communications and electronic design before identifying his true passion—construction and home remodeling – launching his Design-Build firm, Old World Craftsmen LLC, in 1998. With his engineering mindset, Scott brings to projects a keen design sense and engineering problem solving approach – a rare combination in construction today. Scott takes pride in applying modern construction techniques with the old–fashioned care and craftsmanship that has been the foundation of Old World Craftsmen.

See also:
Why Do I Need to Update My Blueprints with Any Final Design Changes?
How Can I Avoid Paying Too Much for My Renovation?
How Do I Select the Best Builder?
Top 5 Remodeling Problems and Their Solutions
Do I Need a Building Permit for My Project?