A new pre-application has been submitted to Greenwich Planning & Zoning from Sherwood Farm LLC, which is registered to Giuseppe and Emilia Furano, owners of Furano’s Landscape.
They propose to convert a residential cottage that was badly damaged by a fire to an office and storage building.
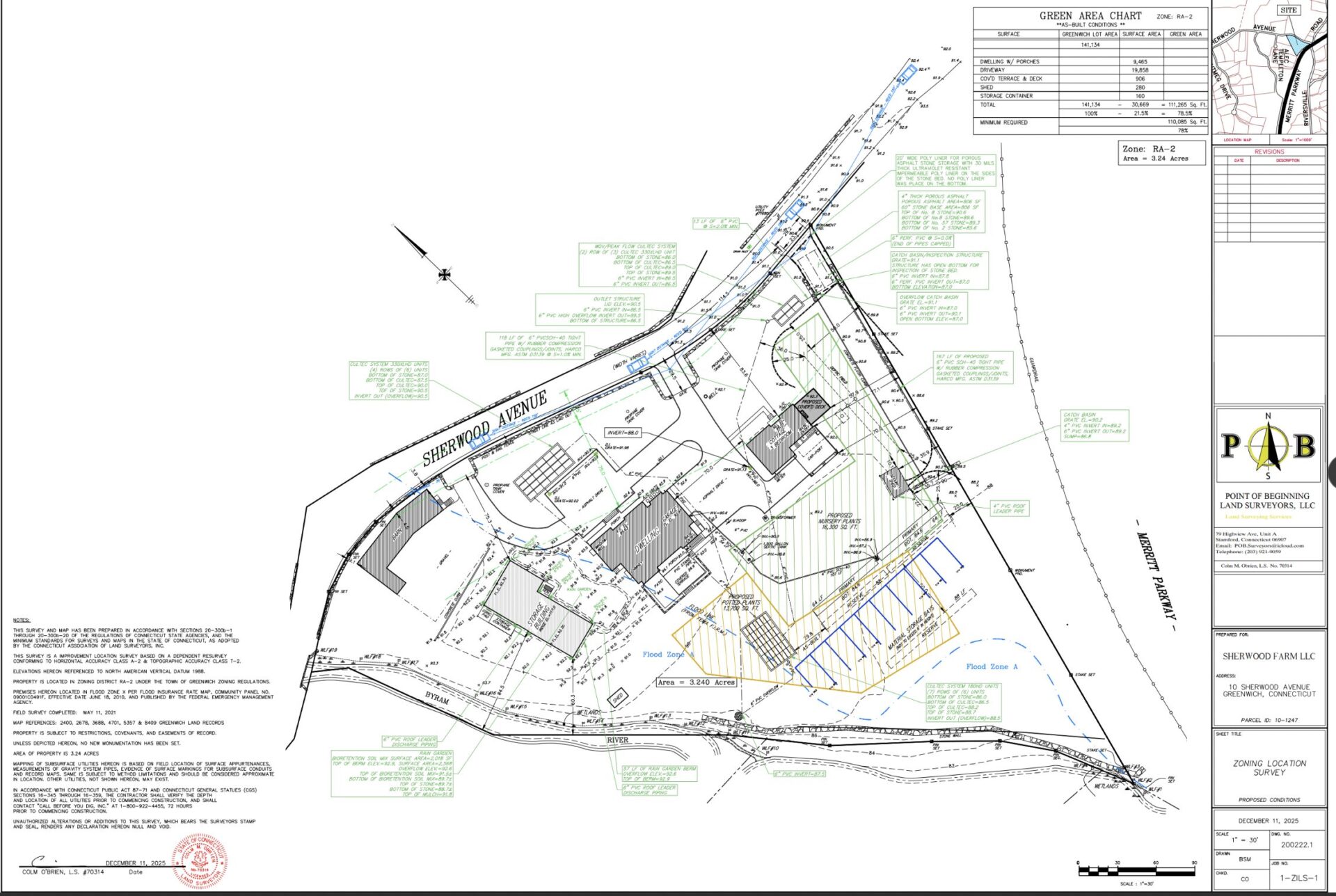
The property is near the corner of Sherwood Avenue and Riversville Rd just above the Merritt Parkway.
According to the assessor’s office the property at 10 Sherwood Avenue is 3.0971 acres, located in the RA-2 single family residential zone.

Image from applicant file at P&Z.

Image from applicant file at P&Z.

Image from applicant file at P&Z.
According to the application narrative, in 2019 the Planning and Zoning Commission approved the property at 10 Sherwood Avenue as a nursery for the propagation and sale of wetland plantings.
At the time of the nursery approval in 2019, a single-family dwelling, barn, storage building and a cottage existed on the property.
In 2022 the Commission approved the construction of a shed along with a storage container and exterior material storage bays.
In 2024 the cottage was damaged by a fire. Rather than rebuilding the cottage as a dwelling, the owner proposes to convert it to an office and storage building. He also seeks to add a roof over an existing deck.
The renovation of the structure to be used for offices and storage also includes the construction of a handicap accessible bathroom.
No other changes are proposed on the property.
The application is on the agenda for the Jan 21, 2026 P&Z commission meeting. Agenda link here. The meeting is via zoom, agenda includes link.
Those familiar with the neighborhood may remember a pre-application for “Applecrest” across the street at 11 Sherwood Avenue in 2023.
The applicant, Windflower LLC sought to rezone and build 11 new single family homes using a Historic Overlay zone to preserve an existing Tudor mansion and gain zoning bonuses. The developer proposed conservation efforts and clustering of the proposed homes. At the time, the skeptical P&Z commission asked, What does it do for Greenwich?