Rink Task Force Votes to Support “Modified Flip” In Byram’s Morlot Park after Process of Elimination

The 9-member Dorothy Hamill Rink Task Force, chaired by Matt DesChamps, voted unanimously last Wednesday in favor of “modified flip” in Byram’s Eugene Morlot Park, which is similar to the recommendation of a previous rink committee led by Bill Drake.

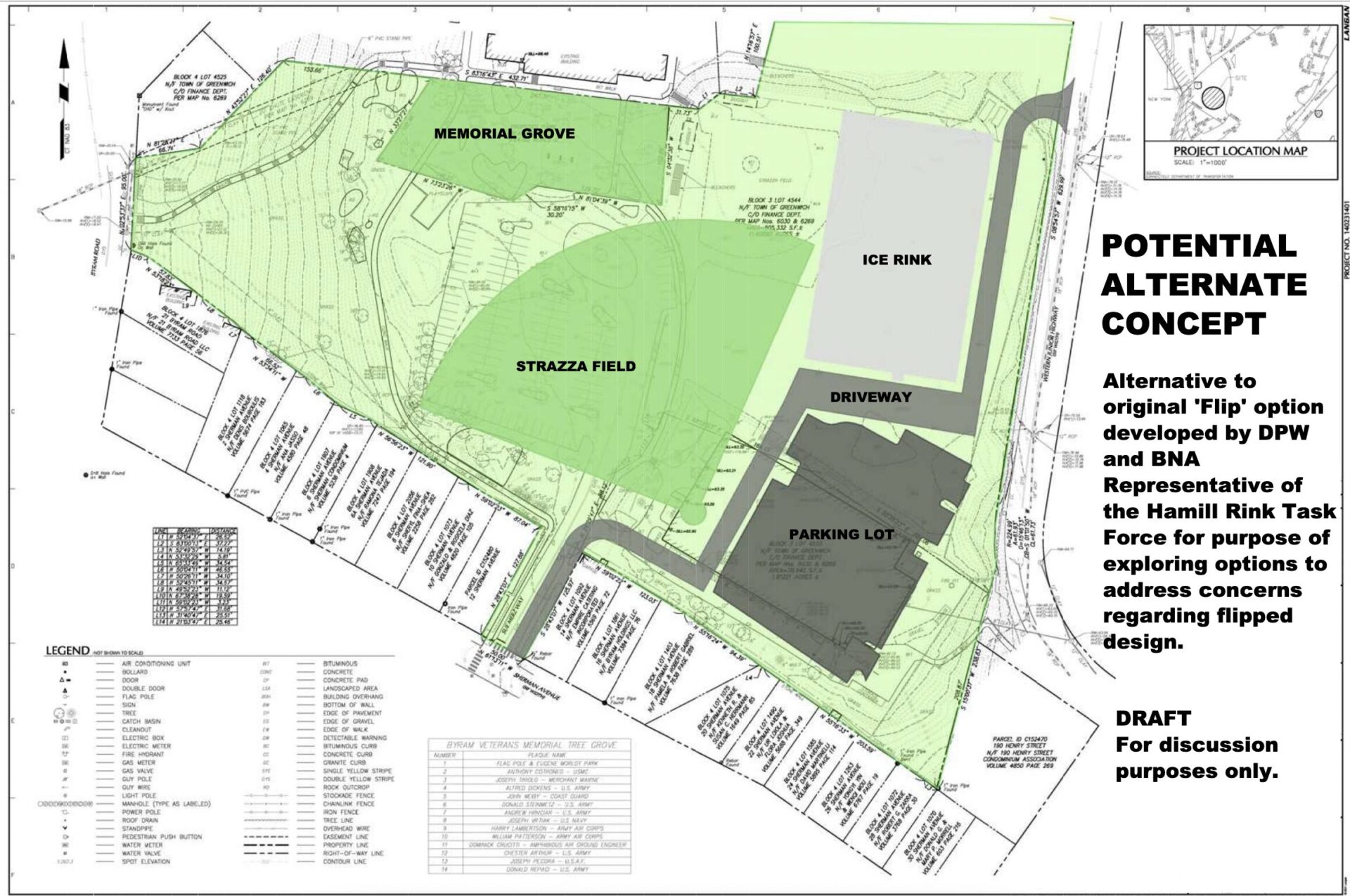
The concept of a “flip” is to build adjacent to an existing facility and then tear down the original afterward.

On Friday, during his Ask the First Selectman radio show, Fred Camillo, told host Tony Savino, “This is what we advised two years ago. You want to make sure everything has been vetted again, and if people have any concerns. But the two years costs us more money. It’s incredibly higher now.”

Camillo said he was talking to potential donors for public-private partnerships with an eye to “getting the price tag down a little bit.”

He added that in his opinion, “the flip” made the most sense. “Looking at it again and thoroughly vetting it – they confirmed what we wanted to do a few years ago.”

“Not everyone is going to agree with the site location. That wasn’t the objective.” – Hamill Rink Task Force chair, Matt DesChamps

Asked about the push back against the flip, Camillo said push back was typical in Greenwich.

“There was push back on Tod’s Point. It failed three times. Three times on the RTM. There was push back on Cos Cob Park. There was push back on the beautiful new Civic Center,” Camillo added. “Sometimes you get the same people who turn out at all of the meetings.”

“They’re going to do the same thing with every single thing we do. You have to double down, and work that much harder to get to yes that much quicker.”

Hamill rink today is in the southeast corner of Morlot Park.

Hamill rink today is in the southeast corner of Morlot Park.

On Tuesday task force chair, Mr. DesChamps was interviewed on WGCH.

He said the charge that his task force received in March from Camillo was to recommend a location for a new rink that would serve the community for the next 50 years.

He said the task force had aimed to be transparent and invited community input, during nine months of weekly meetings that included public comment. Additionally they held  two public hearings.

The task force was put together by the First Selectman and included an ADA representative, veterans representative, a BNA rep and RTM members.

DesChamps said, “We reviewed over a dozen sites over that time through a project plan we developed and a rink evaluation matrix.”

He said there had been a process of elimination starting with the 200 town-owned parcels that are over 2 acres.

At dusk, the view of Horseneck lot from Boys and Girls Club at rush hour.

Options were narrowed to three: Island Beach parking lot, Horseneck parking lot (both right off to I95 exit 3) and Morlot Park in Byram, with a few options within that park.

The task force voted 8-0 (one member was absent) in favor of eliminating the two parking lot locations, as well as a “build in place” option.

“That leaves modified flip or a flip version for the town to determine,” DesChamps told GFP this week.

DesChamps said the task force’s decision was informed by an environmental impact report, community input and a professional cost estimate.

He said an environmental study showed potentially significant costs and liability associated with disrupting the soil underneath either of those parking lots.

“You needed a bunch of different elements to make it viable. It has be a certain size. It has to be a certain level. There are setback rules and environmental concerns. And it needs to comport with the POCD.”

DesChamps is preparing a report that will recommend a modified flip and include new features. That will be presented to the task force for their approval on Jan 6, 2026.

DesChamps acknowledged that the task force understood there were concerns about locating the rink in Morlot Park.

“We did take into account much of the feedback from the Byram neighborhood. We have a Byram neighborhood rep on the task force,” he said, adding there are nine members of the task force representing various town constituencies and one of them is the BNA and the Byram neighborhood.

“In the last few weeks, as we were deliberating, we received increased Byram support by way of emails and correspondence in support of the modified flip option,” DesChamps said.

The modified flip will again go before the P&Z commission, who previously approved a different version of the flip, but with numerous conditions.

It will again go before the RTM, where it failed previously.

DesChamps said the first time the flip went before the RTM, “The RTM didn’t feel like the other sites were properly evaluated.  They didn’t understand the process. And they didn’t understand the costs.”

DesChamps gave a presentation to the full RTM leading up to the final vote.

“I didn’t receive any real questions after that presentation other than compliments for the work we have been doing,” he told Mr. Savino.

Preliminary cost estimates for the modified flip are around $35 million, but DesChamps said that does not include “soft costs” or enhancements that townspeople have indicated they would like to have included.

DesChamps said he believed that at minimum, the price tag would exceed $40 million, in anticipation of maintenance costs and significant energy demand.

Those costs will be included in the final report.

The actual design work, features, and exact positioning of the rink are not under the purview of the task force.

DesChamps anticipated the project would be included in the 2027 capital budget, with A&E work done in 2026.

“Not everyone is going to agree with the site location. That wasn’t the objective,” DesChamps said. “What we were hoping for was that the town and people involved would appreciate the process we used and that we went about this is a balanced transparent way.”

Criticisms of the original flip were repeatedly voiced to the P&Z commission during the public comment in 2021, 2022, 2023 and 2024. And the P&Z chair at one point referred to the flip resulting in “tremendous site disturbance.

The main objection of Byram residents to the first flip was they wanted to preserve open space in their densely developed part of town. They said the flip would split the park’s green space in half.

They also noted that the P&Z commission previously approved construction of “Vinci Gardens,” a large new housing authority project for the elderly in open space adjacent to the park that will also decrease open space in Byram.

In Nov 2024, P&Z commissioner Mary Jenkins said, “I need to think about an appropriate balance between providing the absolute best ice rink in that location and balance it against the loss of a park and the loss of public green space.”

And while P&Z did ultimately approve the application in December 2024, the list of approval conditions was extensive and noted the 2019 POCD’s Guiding Principle No. 1 was, “Preserve our community character and sense of place;” Objective 1.2, “Prevent commercial impacts and activities from encroaching on residential zones;” and “Objective 3.1 e) Increase buffer space, as well as planting requirements, between institutional and residential uses, particularly around parking lots, auditorium spaces, and athletic facilities, and h) Avoid removal of trees on Town property including at parks and schools.

After P&Z approval, the application for Municipal Improvement still required the approval of the RTM.

Four Byram residents involved with the Byram Neighborhood Association and/or RTM District 4 – Liz Eckert, Joseph Kantorski, Al Shehadi, Lucy Von Brachel  – united to oppose RTM approval of the MI for ‘the flip.

They said it prioritized not losing a season of hockey and skating, and ignored their wish to preserve open space.

There were also concerns voiced about locating a large warehouse-style rink close to the Byram Veterans Memorial Tree Grove, now surrounded on all sides by open vistas.

Memorial grove of trees in Morlot Park to honor Byram servicemen to gave their lives for their country.

The four Byram residents filed a formal objection to the RTM, who ultimately voted 52 to 136 (with 6 abstentions) to reject Municipal Improvement (MI) status for the flip as presented.

From there, the First Selectman created the new task force and sent them back to the drawing board.

As word of the vote on the flip option spread, former task force member Liz Eckert wrote an open letter to the task force saying, “It pains me deeply that one of the last true open spaces in the Byram community could be lost to a massive structure in its center.

On Dec 25, Alex Popp said in an email, “If the town wants a rink for Byram, then build it in Byram. But this is a rink for the entire town. A centralized location best meets the needs of the entire Greenwich community, including Byram. There is across town support for building at Exit 3.”

Popp added, “Someone in Byram orchestrated a campaign to support the modified flip plan. A group submitted ‘form letter’ emails to the task force. The letters focused on tradition and convenience. It’s worth noting these letters did not oppose a centralized Exit 3 location.”

Popp noted that back in October the BNA held a meeting where the modified flip plan was presented and the neighborhood was clearly opposed to the plan.

“Eight of the eleven with comments were against it,” he said.

Popp added, “It was interesting that after nine months of meetings, site visits, and guest speakers, the task force’s main focus was on a Byram modified flip plan that doesn’t appear to work. The town’s own drawing reveals a rink and ball field that barely fits the property. Missing are several ‘must haves,’ including access to the memorial grove, dugouts, bleachers, bullpens, parking for food trucks. Additionally, the size of the parking lot is underrepresented and Western Jr Hwy grade level increases are not accounted for.”

Popp said Exit 3 would have been “a win-win” for Greenwich. “Closer to hockey community, Greenwich Avenue restaurants because the rink plan has no food concession, easy on/off I95, MTA rail service, Boys & Girls Club of Greenwich opportunities, out of a congested Byram neighborhood.”

Popp said much of the task force criticism of the possible Exit 3 centralized location was unsubstantiated.

“This includes statements about sewerage, unsafe pedestrian conditions, and salt water intrusion. There are no reports that support these positions,” he continued.  “Additionally, a centralized location, especially 100 Arch, is likely the lowest total cost to the taxpayers of Greenwich, net of sponsorships and fund-raising. And, if a parking study is ever conducted, it will conclude that ample parking is available at times of high rink demand when commuter use is low, such as in the evenings, on weekends, and on holidays.”

Original Proposed Flip Layout Fall 2024.  The Town’s 2024 proposal to build a new rink in Morlot Park in Byram by “flipping” the location of the rink and the current Strazza baseball field.

 

See also:

MI Opponents: Plan is Driven by Hamill Rink User Committee Priority of No Loss of Ice Time

Jan 6, 2025

Hamill Rink MI Approved by P&Z; Site Plan Moves to Final with Lengthy Requirements

Dec 11, 2024

At Memorable P&Z Meeting, Byram Neighbors Again Push Back on “The Rink Flip”

Nov 14, 2024

P&Z Balks at Rink Proposal: Cost is Not Our Purview, Greenspace Is Nov 30, 2023

New Hamill Rink to Be Rebuilt on Existing Footprint at Morlot Park in Byram Feb 2022

P&Z Watch: Hamill Rink Plan “An Enormous Amount of Site Disturbance” Dec 8, 2021

P&Z Watch: Hamill Rink Plan “An Enormous Amount of Site Disturbance” Dec 8, 2021

P&Z Watch: Pre-Application Submitted for “Vinci Gardens,” 52 Elderly Apartments in 4 Story, 50,000 sq ft Building in Byram Aug 6, 2021

Veterans Blast Hamill Rink User Committee: “There Will Be Hell to Pay” June 24, 2021

Rink User Committee Votes on 2-Way Access Road, Relocation of Hamill Rink Despite Veterans, BNA Objection May 29, 2021

RTM Cuts $900 from Budget for Design Work for Hamill Rink at Eugene Morlot Park May 11, 2021

Adding Access Road to New Hamill Rink Could Bump Users for at Least a Year A During Construction May 6, 2021