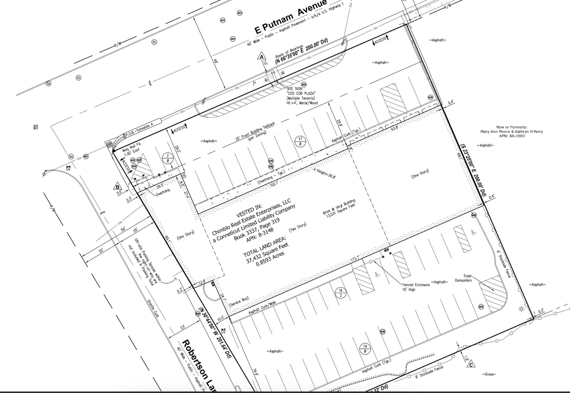
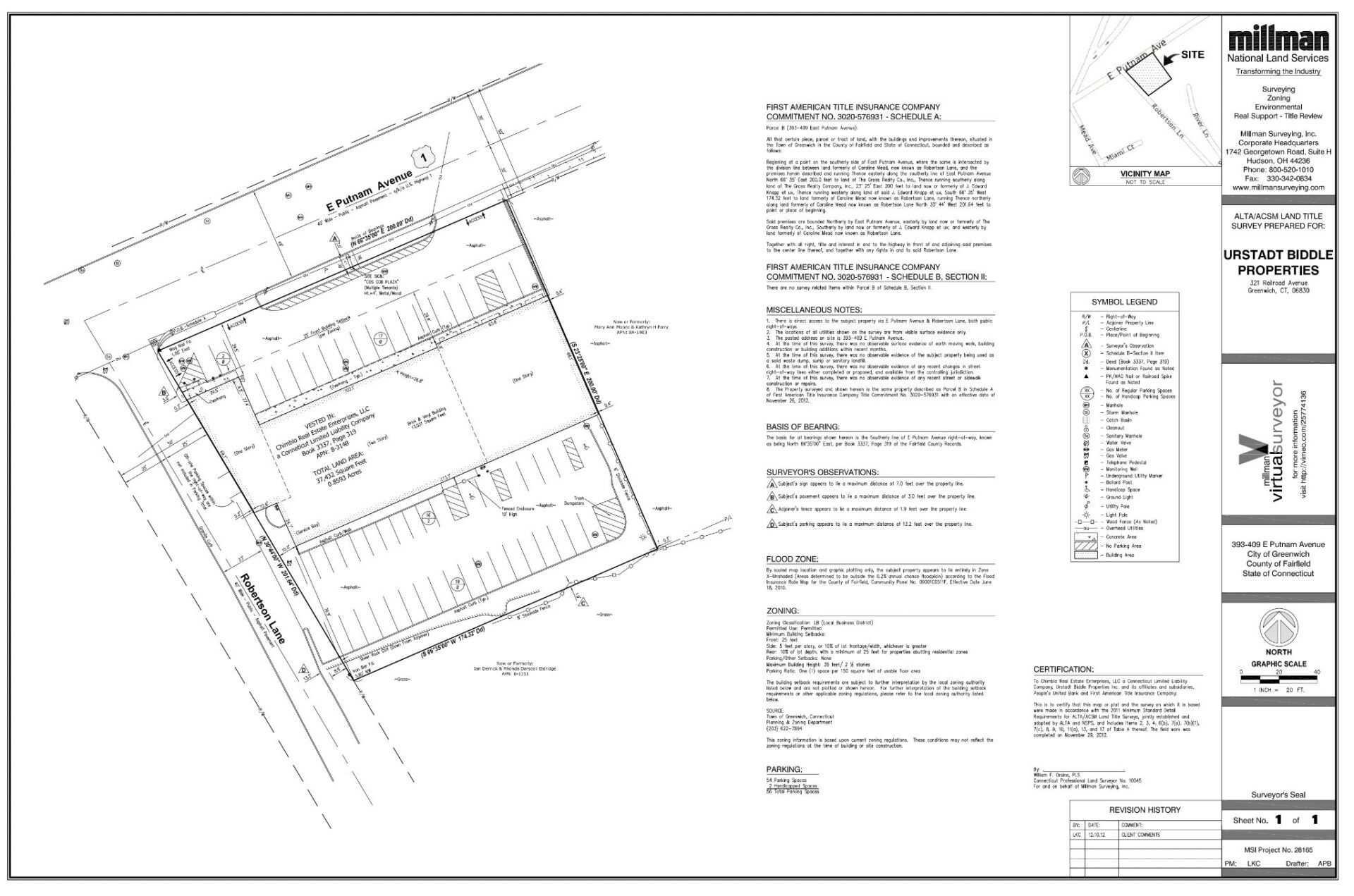
A new application has been submitted to Greenwich Planning & Zoning to consolidate and change the use of two retail spaces to a “fast casual” restaurant with 28 seats, under 3000 sf on in Cob Plaza at 393-409 East Putnam Avenue in Cos Cob.

Cos Cob Plaza. Feb 1, 2026 Photo: Leslie Yager

Cos Cob Plaza. File photo

Specifically the applicant seeks final coastal site plan and special permit.
In their narrative, the applicant, Just Salad 409 East Putnam Avenue, LLC, and Property Owner, UB Greenwich I, LLC, said the two retail spaces will total 2,328 square feet and are in the LB zone.
The new space would replace the former AT&T store and hair salon.
Subscribe to the GFP daily newsletter.
The former AT&T store was retail use and occupied 1,599 s.f. of floor area. The former salon was personal service use and occupied 729 s.f. of floor area.
The applicant proposes 28 seats. Staffing is estimated to be 8-15 employees across shifts. Hours of operation are planned to be 10:30 a.m. – 9:00 p.m.
Customer flow would primarily be dine-in and take-out with delivery support.
Subscribe to the GFP daily newsletter.
As reflected in the parking study, Cos Cob Plaza has 55 parking spaces. The application narrative says a change in use of the consolidated space to restaurant would significantly reduce the required number of required parking spaces under § 6-158 of the Building Zone Regulations.
The former AT&T store required 8 spaces while the salon required 20 spaces. The planned restaurant will require 11 spaces.
Required parking for current tenants and the proposed restaurant is 79 spaces, reflecting a reduction of 17 required spaces.
Cos Cob Plaza is also home to VEG (Veterinary Emergency Group) who offer 24-hour emergency and urgent care, 365 days a year at 409 East Putnam Ave.


Screenshot

