The May 14 Planning & Zoning Commission agenda includes a proposal to rezone part of 6 Neil Lane, home to Rocco V D’Andrea Inc, land surveyors, land planners and civil engineers.
The 1.172 acre property already is in two zones, but they seek to re-zone a 44,163 square foot portion of the 51,052 square foot property from the R-7 residential zone to the LB (Local Business) zone and construct an addition to the rear of the existing office building.
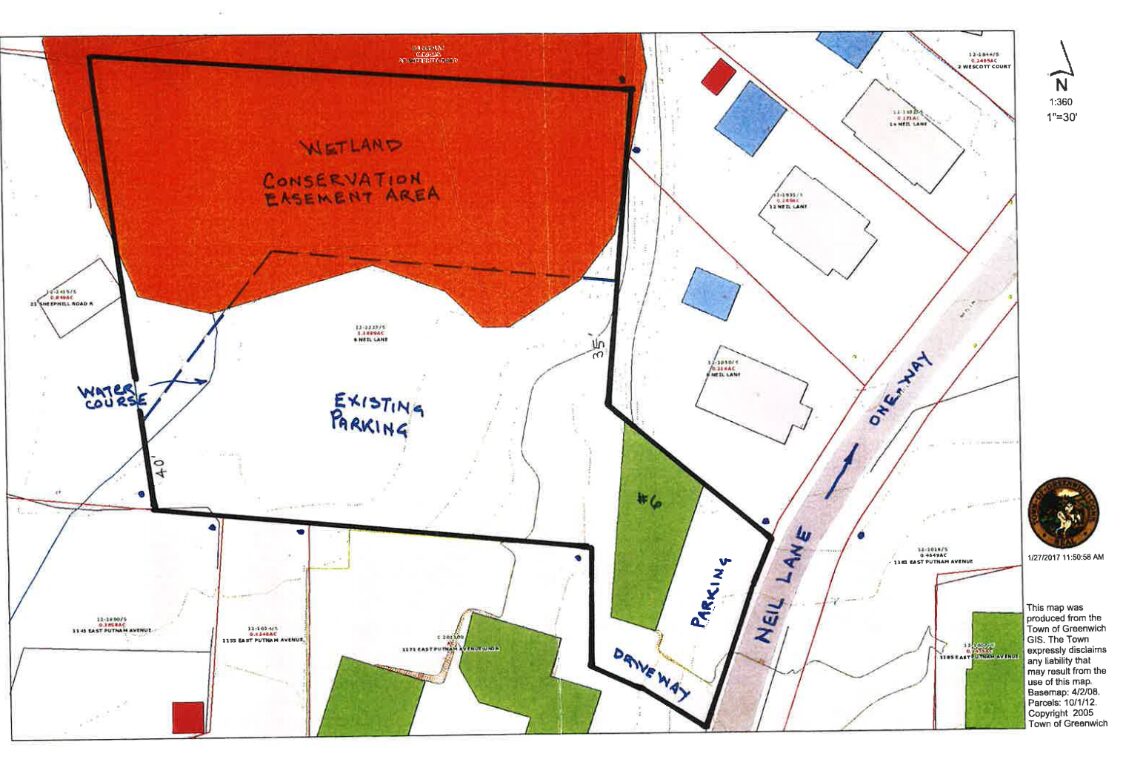
In the process they propose to also create conservation easement of about a half acre.
In 1962 Rocco D’Andrea purchased the land in the LB zone. In 1963 he purchased the land in the R-7 zone and combined the two.
In 2005 CoConn, whose principals are Tony and Leonard D’Andrea, purchased the property from the estate of Rocco D’Andrea and his wife Eulalie.

Front of office building at 6 Neil Lane.
The building was constructed in 1963. It sits on the portion of the property in the LB zone and is occupied by Rocco D’Andrea, Inc, and more recently D’Andrea Surveying & Engineering, P.C.
The residential part of the property is described as landlocked as it is accessed via a driveway in the LB zone.
A major portion of the residential part of the property contains wetlands that function naturally to provide stormwater infiltration and storage, and animal habitat.
The remaining part of the residential property is used for parking for employees and has been since 1967.
According to a letter from the applicant, during construction of the Riverside sanitary sewer system, contractors for the Town of Greenwich disposed of excess material from excavation and used the R-7 portion of 6 Neil Lane.

Office building at the front of 6 Neil Lane.
The proposed rezone to LB would mean that the office addition would be a permitted use, and the employee parking would no longer be non-conforming in the residential part of the property.
According to the applicant, the business does not rely on pedestrian traffic, and the addition would not change the character of the neighborhood or increase traffic.
The existing office building appears to be a single story when viewed from Neil Lane, a one-way street. The topography drops down behind the building so the addition would not be visible from the street.
They also propose to add a parapet to the roof to conceal mechanicals.

At 6 Neil Lane parking (white) for the business is in front of the office building (green). Behind is the existing parking (white) and wetland area (red).
The P&Z meeting starts at 4:00pm on May 14 and is via Zoom only. Link to Zoom is in the agenda.