By Scott Simonsen, Owner, Old World Craftsmen, Greenwich
Overview
Until a remodeling project is fully designed down to the last product purchase, and even into the construction phase, there are often last-minute design changes. Some types of changes are minor, like moving a bathroom sconce higher, adding crown molding, etc and may not require an update to the blueprints to implement correctly.
However, some types of changes need to be reflected with revised blueprints/design plans. This article highlights some types of changes that critically must be updated on the blueprints.
What are Blueprints for?
To understand why the update is essential for a smooth construction phase, first we need to understand how the blueprints and design specs will be used by tradesmen during the renovation.
Thoroughly developed blueprints are part of how the work to be done is communicated to you as the customer, as well as to the builder. They are the bridge between your vision and how you wish to see and use the space, and the builder who should be making it a reality.
• Where are the switches, the lights?
• How will the flooring run?
• Which way do the doors swing?
• Do the windows have divided lights?
• Where are the radiators? Is there air conditioning?
• What is the door style?
• What door and base moldings will be used?
They marry together with the builder’s proposal to make sure the agreed upon price is associated with a solid description of work scope to avoid miscommunication or even intentional omission. Investing in design drawings can save you thousands of dollars!
How are they used?
The blueprints will be constantly referenced by the project manager, carpenters, electricians, plumbers, HVAC technicians and masons to determine mechanical layouts. The trades will use the prints to reference their work as well as where the other tradesman has work to do to avoid interferences. There are hundreds of examples of this. Here’s a couple for illustration:
• We can’t put the shower drain where there is a recessed light in the ceiling below.
• An air duct could be in the way of the lighting layout we have in mind.
• There might be a structural support where we want to put our switches.
• A wall might need to be built out to fit a dryer duct, a pipe or a duct, affecting the room size.
• A change in a door swing direction will affect where the electrical switch should be placed.
• An addition of a pocket door means nothing can be in the wall where the door will slide. (No switches, pipes, wires)
At the end of the project done by a competent team, you’ll see how well worn/loved the blueprints are!
Changes that must be updated
With a little better idea of how the construction team will be using the blueprints, it’s easier to understand which design changes require critical updates of the blueprints:
1) Wall layout changes: These affect every single carpentry and mechanical trade and failure to update the new layout is a recipe for re-do’s of work.
2) Significant changes to window or door sizes. A significant change in size, particularly in width is likely affect the structural beam needed atop the opening, and could affect plumbing, electrical and HVAC installations.
3) Electrical/switching Revisions: Any significant change in the switching or lighting prior to the project is best documented on the blueprints to avoid additional costs to the client. Sometimes a desired change may be impossible or cost prohibitive if proposed just a moment too late. For example, a framing member may be in the way of a desired lighting location. A client might not realize that an electrical change could affect the framing phase.

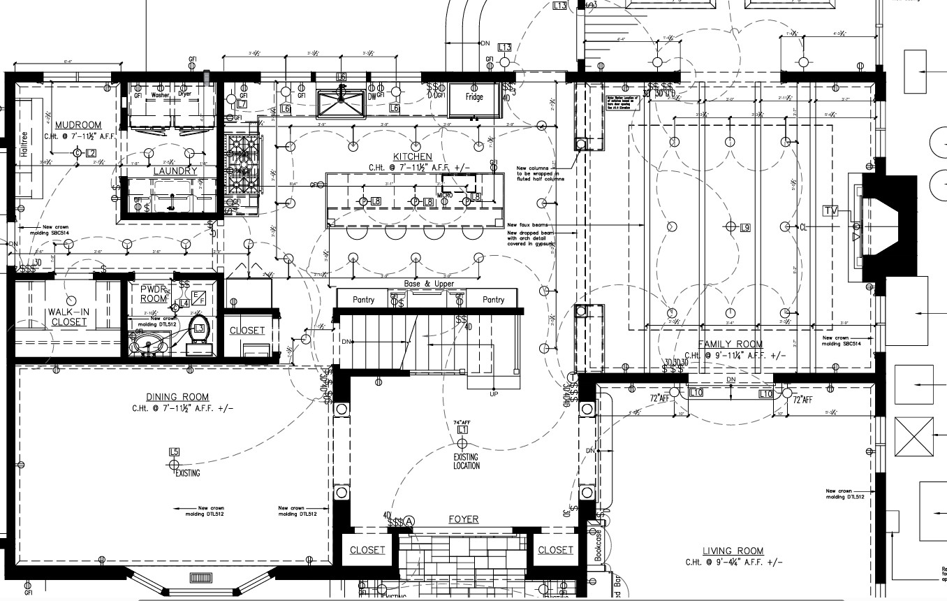
Electrical & Lighting blueprint sample
Exceptions:
• Minor shifts: if the client wants to move a recessed light a few inches, this can certainly be done with the builder in the field.
• Urgent in-field changes: Once the project is under way there may not be time to update the blueprints since a change may have to occur in the moment, in time for inspections, next steps, sheetrock, etc.
Why editing the blueprints matters
Change Orders
Most changes made once the project has started will constitute a “change order” – that is, additional costs for revisions made, sometimes including costs for work that has to be redone. If, instead, the changes can be made to the blueprints in advance, you may be able to avoid additional charges.
Common Client Objection
“But I told my builder verbally or in an email about the changes I want.”
Now with an understanding of how many tradesmen are affected by changes to the project design, it’s easier to understand why the blueprints are the best way to communicate every detail to the team. In fact, that’s the blueprints’ function.
The tradesmen on the job don’t have access to the builder’s chain of hundreds of emails discussing design decisions, nor the dozens of verbal conversations. It’s not uncommon for a design phase to be up to one year long – imagine sifting through all those emails to find the one that overrides the blueprints.
Let’s say a conscientious builder redlines the job blueprints himself to reflect changes – but keep in mind that 5 sets of blueprints may have been distributed to each tradesmen. What happens if the plumber has a set without the redlining, but the carpenter is working off of the redlined set?
Why does the client object to updating their design?
The builder often has trouble understanding why a client doesn’t want to update the drawings to reflect their vision, since it’s in their best interest. But as with most things, it likely comes down to money. The architect or designer will have to be paid an hour or two to make the changes at their rate of let’s say $150 to $200 /hr.
Long Term Savings
Let’s look at a few examples of the potential costs/fallout from redo’s resulting from a layout change communicated verbally or in a satellite email instead of on the blueprints:
- Relocate electrical wires, outlets or plumbing vent lines run in an area to have a pocket door
- Relocate switches affected by a new door swing
- Relocate plumbing to accommodate a recessed medicine cabinet
- Jackhammering of a concrete slab required to relocate plumbing fixture
- Relocate a duct affected by a revised lighting or partition layout
You can’t really predict the cost of the redo’s, but clearly we are talking about potentially thousands of dollars of cost instead of hundreds invested in design plans.
Conclusion:
Good design plans are in the CLIENT’s best interest.
Design documents updated with the client’s latest changes prevent downtime and additional charges! It’s a formula for success.
Scott Simonsen is a graduate of Cooper Union’s select Electrical Engineering program. He spent three years in communications and electronic design before identifying his true passion—construction and home remodeling – launching his Design-Build firm, Old World Craftsmen LLC, in 1998. With his engineering mindset, Scott brings to projects a keen design sense and engineering problem solving approach – a rare combination in construction today. Scott takes pride in applying modern construction techniques with the old–fashioned care and craftsmanship that has been the foundation of Old World Craftsmen.

See also:
How Can I Avoid Paying Too Much for My Renovation?
How Do I Select the Best Builder?