At their Oct 15 meeting, the Greenwich Planning & Zoning commission voted unanimously 5-0 to approve an application for Final Coastal Site Plan and Special Permit to demolish an existing primary structure at 189 Sound Beach Ave dating back to 1910, and construct a new commercial structure.
The new building will maintain office use on both the ground and second floors, which is a non-conforming use.
The property is in the three zones: LBR2 (local business retail), OGVDO (village district) and COZ (Coastal Overlay) zones.
The property at 189 Sound Beach Ave – .135 acre parcel – is within the boundaries of the Old Greenwich Village District, which went into effect Dec 4, 2024.
The applicant is 189 SBA LLC. The property sold from 189 Sound Beach Avenue LLC to AP Realty Associates LLC on Aug 20, 2024 for $1,700,000.
The project was originally proposed as a Queen Anne style building, which the commission thought was beautiful but inconsistent with the streetscape.

Subscribe to the daily Greenwich Free Press newsletter.
“It’s worth looking at the original Queen Anne (design),” Alban said. “When we first saw this, the main comment we had on this application was the beautiful design, but we asked about consistency with the Old Greenwich/Sound Beach Avenue look and feel, and what was in the Old Greenwich guidelines for their streetscape.”

Feb 2025 rendering: Wadia Associates

Revised design rendering from Wadia Associates of a commercial building at 189 Sound Beach Ave, which was unanimously approved by P&Z on Oct 15, 2025.
“Just some minor changes makes it work really well,” said commissioner Nick Macri.
The application was reviewed by the Architectural Review Committee as mandatory by the regulations. ARC endorsed the design in August.
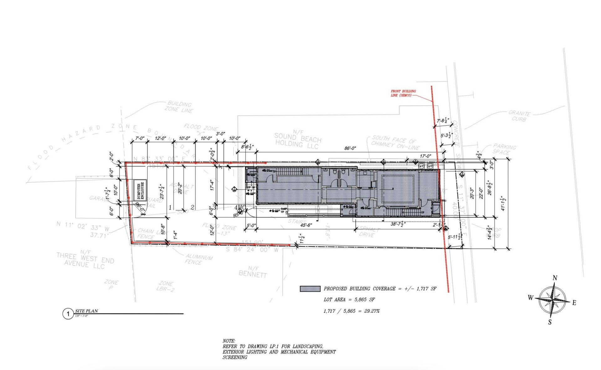
The new building will be 2-1/2 stories, wood framed and about 3,202 sq ft.
It will have a pitched roof at the third half story set back from the street line.
The building will have a wood shingle roof, decorative painted wood cornice with brackets and painted wood pilasters flanking large storefront windows and clapboard siding.
The proposed volume of the structure exceeds 40,000 cubic feet in the LBR2 zone, which means the special permit was a requirement.
Today, the building is set back 22 feet. The front yard setback for the new building will be reduced to seven feet, aligning closely with neighboring structures.
The parking will be reconstructed to include 3 parking spaces and 1 ADA space.
There will be landscaping at the front of the front of the property and around a refuse area at the rear.

189 Sound Beach Ave. Oct 21, 2025 Photo: Leslie Yager

189 Sound Beach Ave. Oct 21, 2025 Photo: Leslie Yager

Rear of existing building at 189 Sound Beach Ave. Photo: Applicant’s file
Non-Conformities to be improved:
• Lot Coverage: Reduced by approximately 13%, bringing the project closer to compliance.
• Floor Area Ratio (FAR): Slight reduction in FAR improves conformity.
• Parking: An ADA-compliant parking space will be added.
• Setbacks: The proposed relocation of AC units increases the northern side setback, improving
compliance.
Non-Conformities to be maintained:
• Use: Continued Use Group 2a (office) on both the ground and second floors, consistent with historical use.
• Parking Count: The total number of parking spaces remains at four continuing the existing non-conformity.
There was no public comment.
After the application was closed, the commission voted 5-0 to approve with Margarita Alban, Nick Macri, Peter Lowe, Dennis Yeskey and Mary Jenkins voting.


See also:
P&Z Application Would Replace 1910 Building in OG Village District
Feb 15, 2025
Candace Garthwaite Honored for Advocacy for Preservation in Old Greenwich