Greenwich Country Day School has submitted a request for pre-application review to Greenwich Planning & Zoning to build multi family housing for staff at 23 and 47 Fairfield Road (Schwarz Campus) and an addition to the school’s existing faculty day care center.
The Schwarz campus, referred to as 23 Fairfield Road, was originally developed as part of the F.A.O. Schwarz estate and still includes some of its original buildings.
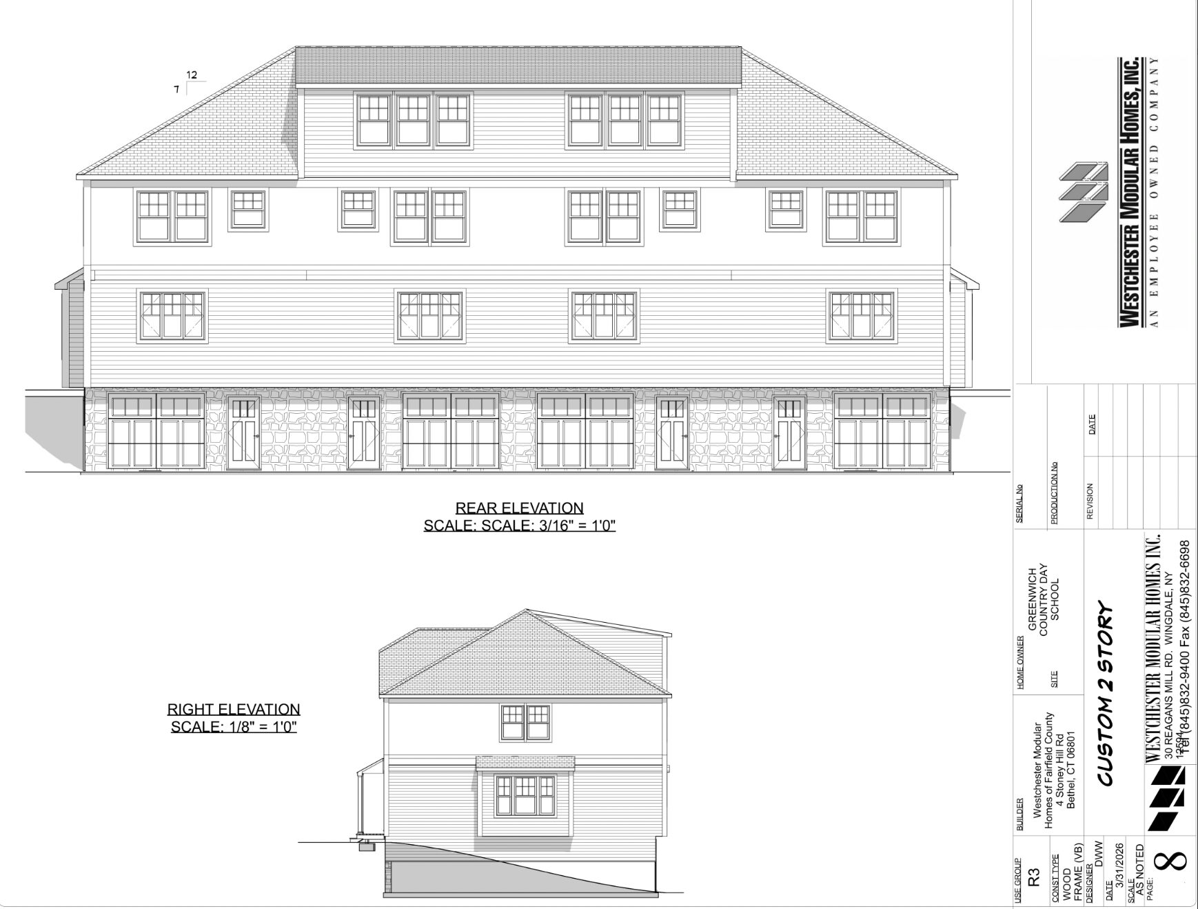
GCDS wants to add 20 new housing units and improvements to the Schwarz Campus, and an addition to the daycare facility.
It is located in the RA-1 zone.
The new housing breaks down to:
• A 2-½-story, 10,225 sq ft, 8-unit pre-fabricated apartment-style building
• (12) new pre-fabricated 3-bedroom townhouses
• A pre-fabricated 2,853+/- sq ft addition to the existing 2,000+/- 1-½ -story faculty day care facility.
• (28) new parking spaces: (three along the circular drive by the new apartment building and 25 spaces in a new parking lot located south of the new townhouses
• The Schwarz Campus is bound by Greenwich Country Club, Cardinal Road / Greenwich Skating Club, and Fairfield Road, across from the GCDS main campus.

In 2006, the P&Z commission approved the school’s major renovation project for 23 Fairfield Road for 20 new pre-fabricated residential units to be added to the school’s existing 23 dwelling units, for a total of 43 units. The commission also approved a new 2,000 sq ft faculty child day care building, construction of the school’s existing maintenance building complex, a small restroom/athletic equipment storage building at 47 Fairfield Road, and additional parking and related on- and off-site improvements.
According to the applicant’s narrative, today the property has 44 residential units (total of 64 bedrooms) served by 102 parking spaces, including 10 gravel spaces and six additional spaces constructed in the area of one previously approved but unbuilt unit.
Following GCDS’s assumption of the former Stanwich School campus (c. 2018) and the introduction of a full high school curriculum at 257 Stanwich Road in 2019, GCDS has evolved into a fully integrated Nursery through-Grade 12 independent school.
According to the narrative, “While faculty needs have incrementally increased since 2019, the school’s housing inventory has not materially changed during this same time period, resulting in a gap relative to the school’s long-standing housing objective of accommodating approximately 70-80% of eligible teachers through a combination of oncampus and nearby housing resources.”
Competitive housing support is critical in attracting and keeping highquality educators in the Fairfield County market.
The expansion of the existing child day care facility would accommodate increased demand for on-site child care.
GCDS Campuses:
A 33+acre site at 401 Old Church Road is considered the school’s main campus, and houses the school’s academic buildings for pre-school through 8th grade. A 41.5-acre property located at 23 and 47 Fairfield Road, known as the school’s “Schwarz Campus,” is located directly across the street from the main campus and supports the school’s child day care center for faculty and staff families, a number of faculty and staff housing units, its maintenance complex, and several athletic fields located off of Cardinal Road. The GCDS high school is located on a 42+ acre property at 257 Stanwich Rd. A 4+ acre property located at 516 Lake Avenue known as “French Farm,” a historic farm property is used by GCDS as part of its interdisciplinary sustainability curriculum and additional staff housing.

