The Greenwich Planning and Zoning commission on Tuesday reviewed an application to modify an existing two-family house at 129 Hamilton Ave into a three-family by converting the basement to an assisted housing unit under Connecticut General Statutes Section 8-30g.
One unit would be rented or sold to individuals or families at 80% of the area median income for 40 years.
The Chickahominy two family house dates back to 1898.

129 Hamilton Avenue where applicant seeks to add a third unit in 675 sq ft basement and add a stove under 8-30g affordable housing statute.
The property last sold to the applicant, 129 Hamilton LLC (registered to Joseph A Pecora and Sylvester J Pecora Jr according to the Secretary of the State website) in April 2011 for $500,000.
What’s the catch?
While the R6 zone limits residences to two-family, and applications submitted under Connecticut’s 8-30g allows developers to bypass local zoning regulations in towns where less than 10% of housing is deemed “affordable,” the language of the 8-30g statute says the affordable units need to be “comparable” in terms of windows and unit size.
The proposal for 129 Hamilton Ave proposes:
Unit A – 1,621 square feet – three bedrooms on the second and third floors.
Unit B – 1,041 square feet –3 bedrooms on the first floor.
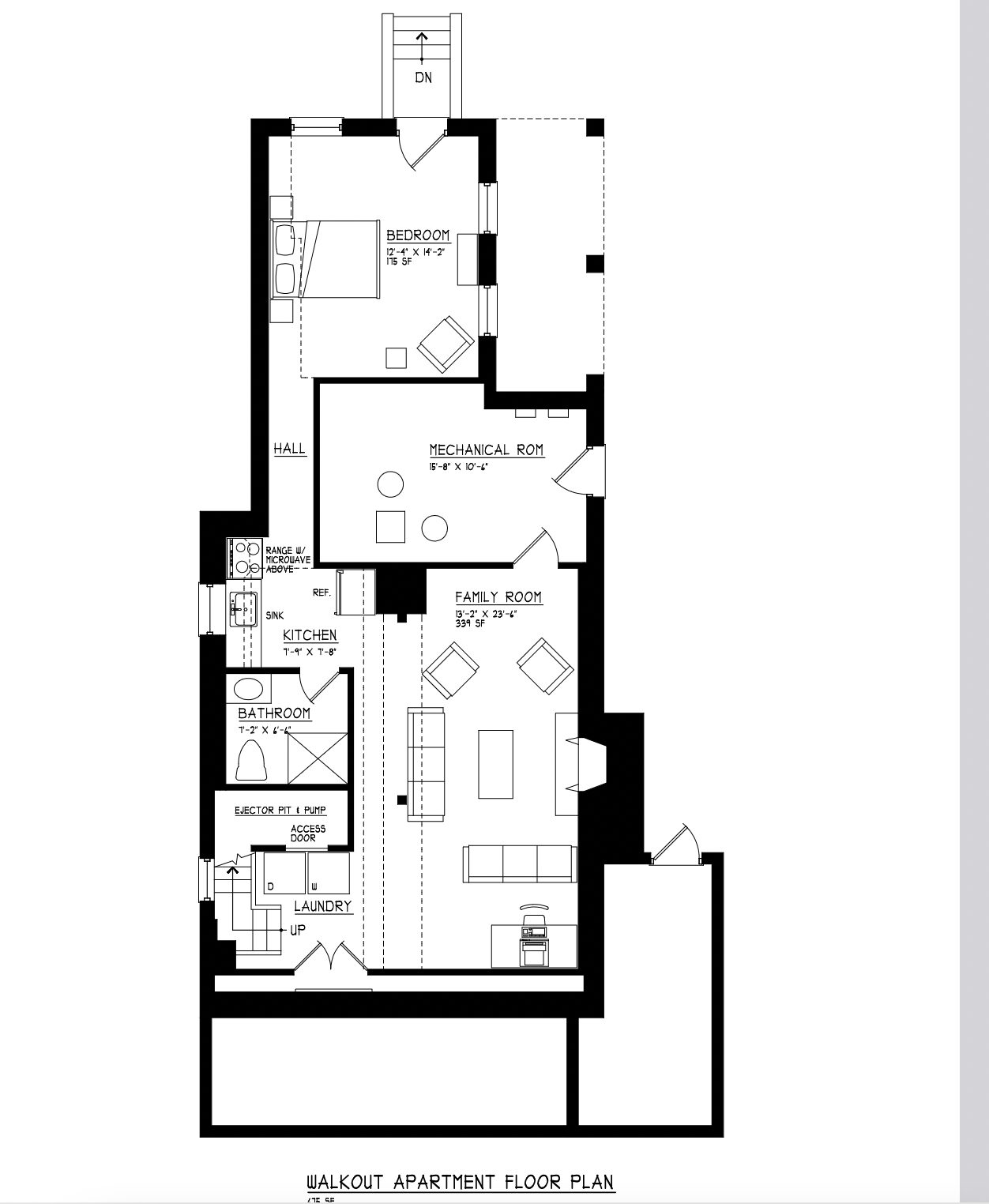
Unit C – 675 square feet – a “walkout lower level” with one bedroom.
The only site improvement proposed as part of the project is to add a stove to Unit C in the basement.

Comparability has come up recently. It was one of conditions of approval for Josh Caspi’s development of two-multi story buildings straddling Mason Street at the former Honda dealership. In December 2024 the commission approved that application with modifications that talked about comparability.
The applicant sued the town in January 2025 and, even thought the trees have been cut and chain link fence erected, the case is still in litigation.
As far as 129 Hamilton Avenue, attorney for the applicant, John Tesei told the commission that 8-30g allows an applicant flexibility and the commission could modify their regulations for “waivers.”
“Whenever you approve an 8-30g application, you are basically issuing waivers, saying, okay, in that zone, despite our regulations, knowing that you can bring in an appeal under 8-30g that we believe would be most probably successful, that you allow waivers for that project to go forward,” Tesei said.
“Mr. Tesei everything you just said went over my head,” said commissioner Nick Macri.
“This application is being brought to us as an 8-30, not an Accessory Dwelling Unit under our 6-99 regulation. Is that correct?” Macri asked.
Greenwich regulation 6-99 allows for one Accessory Dwelling Unit — either internal or detached, but it only applies to single-family homes, to increase housing variety while preserving neighborhood character.
ADUs must remain secondary to the primary home, with no visible exterior changes from the street.
Recent updates were made to relax restrictions on ADUs, moving away from previous mandatory elderly/affordable requirements, while maintaining owner residency requirements.
Tesei said 8-30g allows an applicant to appeal a P&Z denial to superior court.
“I’m either going to modify the application to propose a change in the regulations, a 6-99, or I’m going to modify the application to make a specific request for a waiver.”
“So you would ask that we modify our zoning regulations so that we can do a hybrid that is part 6-99 and part 8-30g? Is that where you’re going?” commission chair Margarita Alban asked.
“I think that’s a fair summary,” Tesei said.
Alban said the language from the state statute refers to a unit being of comparable size and finish to market rate ones within a development.
“I am very well aware of that,” Tesei said. “The density units are two, and we’re only constructing one unit above the density limit.”
“The developer has built that unit. You already told us that unit is there. He’s built it,” Alban said. “So there you go, that unit must be of comparable size and finish.”
“You already admitted that this developer has done this unit, so you are there,” Alban said.
Commissioner Peter Lowe asked, “In what way is it in comparable size and workmanship?”
“Mr. Pecora would attest to the fact that the unit is of comparable size and workmanship – the proposed unit. Right now it is excess space,” Tesei said.
“For the record, the developer has added one unit which is over the allowed density in the zone – under the current regulations, which you propose to modify. It is one unit over what 6-99 specifies,” Alban said referring to the regulation about accessory dwelling units. “You would like to modify 6-99 to allow three units, but at the moment it is one unit over the allowed density.”
“That is the essence of the application,” Tesei said. “We have a different reading of that regulation.”
“We have gotten legal opinions of that section several times,” Alban said. “We have also studied this.”
“I think you’re maintaining that you’re not subject to comparability standards in your current proposal,” said alternate Brooks Harris. “It all comes down to that.”
“I don’t believe the (affordable housing trust fund board) trust would be in a position to do assisted housing of an 8-30g if they are applying under a modified 6-99,” Alban said. “It’s either an 8-30g or not.”
“It’s the number of rooms. It’s the number of windows. There are a lot of considerations that go into comparability,” Mr. Harris said.
“I believe we are exempt,” Tesei said.
Mr. Macri commented that the conversation was going in circles.
“We have two existing units. This is the third. The comparability is the two existing units. Yes, this is a constructed development. This has been built,” Macri said.
Ms Alban said the application was filed as an 8-30g, and to change it to a 6-99 for ADU would result in non-conformities beyond density as discussed.
Mr. Pecora said the basement apartment was about 5 feet below grade. He noted the windows are foundation windows up high and the basement houses a mechanical room and three hot water heaters, one for each space, and two HVAC systems.
“All we did when we bought it in 2011 is redo the bathroom, put air conditioning units in all three floors and change the laundry to a kitchenette,” Pecora said. “I didn’t create three units. This is technically a finished basement…Zoning wise, I am in totally in compliance.”
Macri asked, “We do have an opportunity to make this compatible with the other two units?”
“I don’t see how you can do that when you talk about size,” Pecora said, adding that all the work he had done was permitted by the town.
Alban said that under 6-99 three units would require seven parking spaces and there are only four, so that approach would result in a parking non-conformity.
” If you’re not going to be an 8-30g, you are under-parked. If you are going to be an 8-30g, we are silent on this topic because it is not a health or safety that is more important than our need for affordable housing.”
“I’ve said, this is a perfect opportunity to take a space that – and most houses of this nature would be illegal apartments, and make them legal, and they would actually count towards affordable housing,” Pecora said. “The amount of need for affordable housing, for space like this is probably 20 times over.”
Alban referred to the language of the statute: “The affordable unit has to be comparable to the markets (rate units). It doesn’t say the affordable has to be comparable to other affordables.”
“We’re about to create a housing growth plan. It should be thoughtful,” Alban said. “The moment you allow one R6 unit to officially go to three, you are doing it to a lot of Byram, a lot of Chickahominy, and a lot of Cos Cob. In all of these neighborhoods that are already trafficked tight, you have to think that through.”
Tesei said 6-99 was an alternative to 8-30g.
Alban disagreed.
She said the goal of 6-99 was to provide flexibility for residents to have a secondary and supportive unit of a primary residence, and that the owner would either live in the accessory or principal unit, not restricted to affordability.
Tesei said at the end of the day the courts could decide whether or not the application was a proper 8-30g. “We look at it as a benefit to the town when it comes to increasing affordable housing stock.”
“There is no way to increase the size of the unit,” Pecora said. “To get an extra $1800 a month, I would have to spend an extra $150,000 to do that. I’m just not going to do that….All the HVAC systems are there, it’s ductwork. If it were that easy I would gladly do it, but to get an extra $1800, it would take 10 years to get that back.”
“Can you gain a room in there?” Alban asked.
“No I can’t, that’s my point,” Pecora said.
The commission suggested Pecora talk to the affordable housing trust fund board and and also consider modifications that would result in comparable size.
“Are you going to be demanding the size being the comparable measure?” the applicant asked.
“Yes,” Alban said.
“If you take a step back and look at it, there should be opportunities where in the R6 zone, there could be an additional unit,” Tesei said. “This is a perfect opportunity to allow an affordable unit.”
The application was left open.

Proposed basement “walkout” apartment floor plan.

